UY

A three phase wastewater pumps fitted with vortex impellers ensure the flow without risk of clogging.

Dane techniczne
  • ø Otwór wylotowy mm: 80 - 100
  • Rodzaj płynu: Ścieki
  • Maks. nośność bryły mm: 60 - 100
  • Maksymalna wartość pH: 6-14
  • Maksymalna wydajność l/min: 1660 - 4250
  • Maksymalna wysokość głowy: 11 - 23.3
  • Moc silnika kW: 3,0 - 15,0
  • Faza / Napięcie: 3-fazowy / 400 V / 50 Hz
Krzywa wydajności
1 O
2 O
Specyfikacje
Model Colour code curve ø Otwór wylotowy mm Rodzaj płynu Maks. nośność bryły mm Maksymalna wartość pH Maksymalna wydajność l/min Maksymalna wysokość głowy Moc silnika kW Faza / Napięcie Monitoring
free standing with guide rail fitting
80UY43.0 -50 TOS80UY43.0 -50 1 80 Ścieki 80 6-14 1660 11 3,0 3-fazowy / 400 V / 50 Hz double leakage sensor (mechanical seals chamber and stator housing) 1 signal
80UY44.0 -50 TOS80UY44.0 -50 2 80 Ścieki 60 6-14 1840 13,80 4,0 3-fazowy / 400 V / 50 Hz double leakage sensor (mechanical seals chamber and stator housing) 1 signal
80UY45.5 -50 TOS80UY45.5 -50 3 80 Ścieki 60 6-14 2430 16,50 5,5 3-fazowy / 400 V / 50 Hz double leakage sensor (mechanical seals chamber and stator housing) 1 signal
100UY44.0 -50 TOS100UY44.0 -50 4 100 Ścieki 80 6-14 2650 11,50 4,0 3-fazowy / 400 V / 50 Hz double leakage sensor (mechanical seals chamber and stator housing) 1 signal
100UY45.5 -50 TOS100UY45.5 -50 5 100 Ścieki 80 6-14 3130 13 5,5 3-fazowy / 400 V / 50 Hz double leakage sensor (mechanical seals chamber and stator housing) 1 signal
100UY411 -50 TOS100UY411 -50 6 100 Ścieki 100 6-14 3980 22 11,0 3-fazowy / 400 V / 50 Hz double leakage sensor (mechanical seals chamber and stator housing) 1 signal
100UY415 -50 TOS100UY415 -50 7 100 Ścieki 100 6-14 4250 23.3 15,0 3-fazowy / 400 V / 50 Hz double leakage sensor (mechanical seals chamber and stator housing) 1 signal
ø Otwór wylotowy mm 80
Rodzaj płynu Ścieki
Maks. nośność bryły mm 80
Maksymalna wartość pH 6-14
Maksymalna wydajność l/min 1660
Maksymalna wysokość głowy 11
Moc silnika kW 3,0
Faza / Napięcie 3-fazowy / 400 V / 50 Hz
Monitoring double leakage sensor (mechanical seals chamber and stator housing) 1 signal
ø Otwór wylotowy mm 80
Rodzaj płynu Ścieki
Maks. nośność bryły mm 60
Maksymalna wartość pH 6-14
Maksymalna wydajność l/min 1840
Maksymalna wysokość głowy 13,80
Moc silnika kW 4,0
Faza / Napięcie 3-fazowy / 400 V / 50 Hz
Monitoring double leakage sensor (mechanical seals chamber and stator housing) 1 signal
ø Otwór wylotowy mm 80
Rodzaj płynu Ścieki
Maks. nośność bryły mm 60
Maksymalna wartość pH 6-14
Maksymalna wydajność l/min 2430
Maksymalna wysokość głowy 16,50
Moc silnika kW 5,5
Faza / Napięcie 3-fazowy / 400 V / 50 Hz
Monitoring double leakage sensor (mechanical seals chamber and stator housing) 1 signal
ø Otwór wylotowy mm 100
Rodzaj płynu Ścieki
Maks. nośność bryły mm 80
Maksymalna wartość pH 6-14
Maksymalna wydajność l/min 2650
Maksymalna wysokość głowy 11,50
Moc silnika kW 4,0
Faza / Napięcie 3-fazowy / 400 V / 50 Hz
Monitoring double leakage sensor (mechanical seals chamber and stator housing) 1 signal
ø Otwór wylotowy mm 100
Rodzaj płynu Ścieki
Maks. nośność bryły mm 80
Maksymalna wartość pH 6-14
Maksymalna wydajność l/min 3130
Maksymalna wysokość głowy 13
Moc silnika kW 5,5
Faza / Napięcie 3-fazowy / 400 V / 50 Hz
Monitoring double leakage sensor (mechanical seals chamber and stator housing) 1 signal
ø Otwór wylotowy mm 100
Rodzaj płynu Ścieki
Maks. nośność bryły mm 100
Maksymalna wartość pH 6-14
Maksymalna wydajność l/min 3980
Maksymalna wysokość głowy 22
Moc silnika kW 11,0
Faza / Napięcie 3-fazowy / 400 V / 50 Hz
Monitoring double leakage sensor (mechanical seals chamber and stator housing) 1 signal
ø Otwór wylotowy mm 100
Rodzaj płynu Ścieki
Maks. nośność bryły mm 100
Maksymalna wartość pH 6-14
Maksymalna wydajność l/min 4250
Maksymalna wysokość głowy 23.3
Moc silnika kW 15,0
Faza / Napięcie 3-fazowy / 400 V / 50 Hz
Monitoring double leakage sensor (mechanical seals chamber and stator housing) 1 signal
Ogólny
ø Otwór wylotowy mm 80 - 100
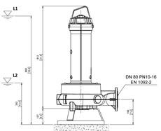
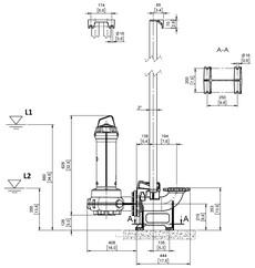
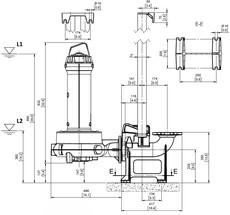
Podłączenie wylotowe DN 100 EN 1092-2, DN 80 EN 1092-2
Pompowanie płynu
Rodzaj płynu Ścieki
Temperatura 0-40°C
Maks. nośność bryły mm 60 - 100
Maksymalna wartość pH 6-14
Maksymalna wydajność l/min 1660 - 4250
Maksymalna wysokość głowy 11 - 23.3
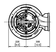
Pompa
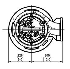
Komponenty
Wirnik Wirnik wirowy
Uszczelnienie mechaniczne Podwójne uszczelnienie mechaniczne w kąpieli olejowej
Tworzywo
Wirnik Odlew z żeliwa szarego EN-GJL-250
Obudowa Odlew z żeliwa szarego EN-GJL-250
Płyta ssąca Grey iron casting EN-GJL-250
Korpus pompy Grey iron casting EN-GJL-250
Uszczelnienie mechaniczne Węglik krzemu
Silnik
Moc silnika kW 3,0 - 15,0
Metoda początkowa bezpośrednio online, gwiazda/trójkąt
Typ, Polacy Silnik indukcyjny 4 bieguny IP68
Izolacja Klasa izolacji H
Faza / Napięcie 3-fazowy / 400 V / 50 Hz
obr./min. 1383 - 1453
Zabezpieczenie silnika (wbudowane) bimetal thermal protectors (Klixon) in series
Monitoring double leakage sensor (mechanical seals chamber and stator housing) 1 signal
Prąd znamionowy 6,70 - 30.8
Tworzywo
Wał AISI 431
Kabel S1RN8F 4G1.5 + 3x1, S1RN8F 7G1.5 + 3x1, S1RN8F 7G2.5 + 3x1
Długość kabla 10m
Inni
Masa sucha kg 60 - 189
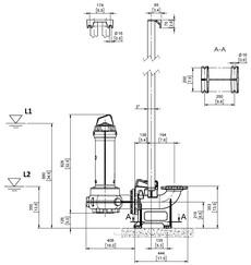
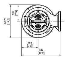
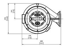
Wymiary - w mm
W1: najniższy poziom bieżącej wody
  • 100UY44.0 -50
W1: najniższy poziom bieżącej wody
  • 80UY45.5 -50
W1: najniższy poziom bieżącej wody
  • 80UY44.0 -50
W1: najniższy poziom bieżącej wody
  • 80UY43.0 -50
W1: najniższy poziom bieżącej wody
  • 100UY415 -50
W1: najniższy poziom bieżącej wody
  • 100UY411 -50
W1: najniższy poziom bieżącej wody
  • 100UY45.5 -50
ModelA
80UY43.0 -50-
80UY44.0 -50-
80UY45.5 -50-
100UY44.0 -50-
100UY45.5 -50-
100UY411 -50-
100UY415 -50-
Wymiary - w mm
  • 100UY415 -50
W1: najniższy poziom bieżącej wody
  • 100UY411 -50
W1: najniższy poziom bieżącej wody
  • 100UY45.5 -50
W1: najniższy poziom bieżącej wody
  • 100UY44.0 -50
W1: najniższy poziom bieżącej wody
  • 80UY45.5 -50
W1: najniższy poziom bieżącej wody
  • 80UY44.0 -50
W1: najniższy poziom bieżącej wody
  • 80UY43.0 -50
W1: najniższy poziom bieżącej wody
ModelA
80UY43.0 -50-
80UY44.0 -50-
80UY45.5 -50-
100UY44.0 -50-
100UY45.5 -50-
100UY411 -50-
100UY415 -50-

UY series is designed for the efficient pumping of domestic, municipal, and industrial wastewater, including faeces and sludge. It handles media with coarse, long-fibre, and plait-forming constituents, making it ideal for complex and demanding environments.

Equipped with a vortex impeller and a full free passage, the UY series ensures maximum operational safety by preventing clogging and allowing smooth flow of solids. Suitable application; Biological liquids and wastewater, Civil and industrial lifting, Wastewater treatment plants and livestock farms, etc...